谁没在小户型里犯过难?
香港房价跟坐了火箭似的,一平米十几万,能拿下29㎡已经是咬着牙拼出来的底气——可你看人家这日子过的,比好多大房子还暖。
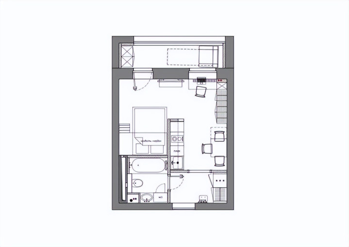
玄关那排小挂钩太懂生活了,出门挂个帽子、围巾,不用翻遍衣柜找不着;换鞋凳选软的,早上赶时间也能稳稳坐下来,比踮着脚换鞋舒服十倍。
还有进门右侧的一体化衣柜,常穿的衣服直接挂这儿,不用绕到卧室翻箱倒柜,这细节不是“装”,是真把日子过明白了。
卫生间的设计更绝:洗手池下面塞洗衣机,本来卫生间就小,这样既不占客厅空间,洗完衣服直接挂阳台,省了多少来回跑的麻烦?
浴缸淋浴二合一,用玻璃隔断挡着,既卫生又不占地方——你说咱平时抱怨卫生间小,不就是没找到这种“把功能叠起来”的巧思吗?
厨房的菱形墙砖看着不起眼,其实比 plain 砖显质感,擦起来还方便,油点子一擦就掉,主妇们肯定懂这种细节的好。
厨台收拾得干干净净,哪怕摆着锅碗瓢盆,都透着过日子的热乎劲——哪像有些大房子的厨房,空得连烟火气都没有。
餐厅的小餐桌靠墙放,虽然挤点,但每天晚上围在一起吃饭,孩子扒着桌子说学校的事,夫妻俩聊今天的工作,那种热乎劲比大房子的空荡强多了吧?
餐桌旁边的衣柜用百叶门,既能藏起杂物,又比实门透气;靠窗的工作区摆个木桌子,光线亮得很,加班或者陪孩子写作业都舒服——你看,这么小的地方,居然能挤出“吃饭+工作+储物”三个功能,这不是会装是什么?
卧室的上下铺我一开始还担心压抑,结果人家把下面做成夫妻床,上面给孩子,靠墙做了储物格放书放玩具,既省空间又给孩子留了自己的小天地——这不比勉强隔个小房间强?
孩子爬上下铺的时候,说不定还觉得像玩游戏,比单独一个小房间有意思多了。
阳台更绝,做了储物柜和小沙发,周末晒着太阳喝杯茶,或者陪孩子拼个乐高,这么小的地方居然能挤出休闲区——你说咱们平时总嫌阳台只能晒衣服,人家怎么就能把它变成“小客厅”?
其实小户型的关键从来不是“挤”,是“巧”——把每一寸空间都用在刀刃上,把每一个细节都贴进生活里。香港人常说“蜗居不蜗心”,这句话真没说错:房子小怎么了?
只要装得懂自己,日子照样能过得热热闹闹、亮亮堂堂的。
你说咱们拼命赚钱买房子,不就是为了下班推开门有口热饭、有盏暖灯吗?
跟房子大小有什么关系?
那些说“小户型没法住”的人,大概没懂:家的温度从来不是用平米数衡量的——是玄关的挂钩、卫生间的洗衣机、餐桌的热饭,是孩子爬上下铺时的笑声,是夫妻俩睡前聊两句今天的小事。
厨房的菱形砖擦得锃亮,餐厅的小桌子摆着孩子画的画,阳台的沙发上堆着刚晒好的被子——你看,这么小的房子,每一寸都浸着生活的甜。
所以啊,别总羡慕大房子,小户型装对了,比豪宅还让人安心。
毕竟日子是过给自己的,不是过给别人看的。
房子小怎么了?
只要装得懂自己,日子照样能过得热热闹闹、亮亮堂堂的。
你说是不是?
粤有钱配资提示:文章来自网络,不代表本站观点。